Wille przy Promiennej
Kameralny dom w zabudowie bliźniaczej, wyróżniający się eleganckim designem i praktycznymi rozwiązaniami a połączenie jedynie przez garaże zapewnia wyjątkową prywatność oraz wysoki komfort akustyczny.

O inwestycji
Wille przy Promiennej to inwestycja obejmująca dwa lokale w zabudowie bliźniaczej, które oferują komfortową przestrzeń o powierzchni 173,08 m². To kameralny dom w zabudowie bliźniaczej, wyróżniający się eleganckim designem i praktycznymi rozwiązaniami.
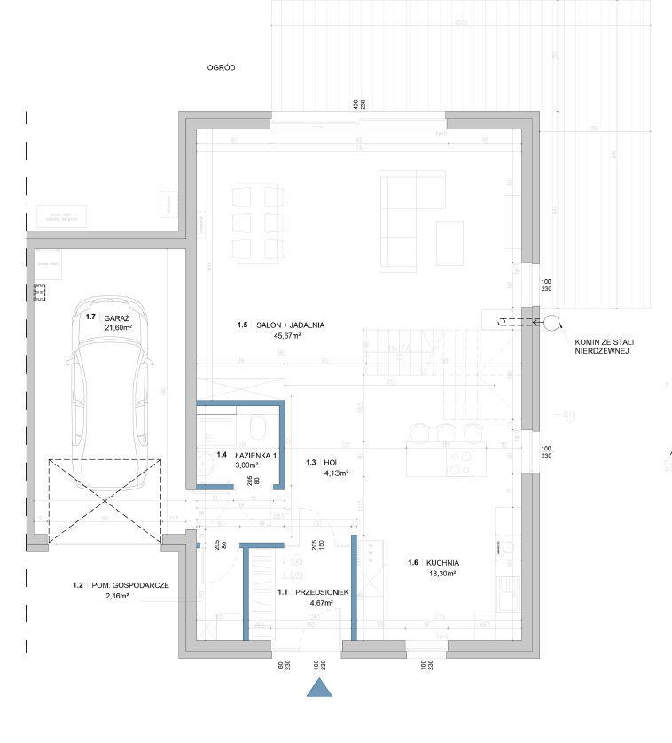
Każdy dom dysponuje pięcioma pokojami, a funkcjonalne rozkłady pomieszczeń zapewniają wygodę i komfort życia. Na parterze znajdziesz część dzienną z przestronnym salonem, który prowadzi na taras i ogród, aneks kuchenny oraz łazienkę dla gości. Na piętrze mieszczą się cztery sypialnie oraz główna łazienka.

Do każdego lokalu przynależy duża działka o pow. aż 750 mkw. W cenę domu wliczony jest też garaż znajdujący się w bryle budynku oraz miejsce postojowe przed posesją.
Standard wykończenia obejmuje ogrzewanie podłogowe i nowoczesny system rekuperacji, a deweloper oferuje możliwość dopasowania wnętrz do indywidualnych potrzeb, w tym rozwiązania ekologiczne i inteligentne systemy zarządzania domem.
lokalu
Lista lokali
| Lokal | Metraż | Ogród | Cena całkowita | Cena za m2 powierzchni użytkowej | Plan | Ulubione | Status |
|---|---|---|---|---|---|---|---|
2 | 173.08 | 514.7 | 1 490 000 zł | 8 609 zł zł |
Historia zmiany ceny mieszkania nr 2
| Lp. | Data | Cena | Cena za m² |
|---|---|---|---|
| 1 | 31 stycznia, 2026 | 1490000 zł | 8609 zł |
Standard inwestycji
podłogowe
osiedla
utwardzony dojazd
postojowe
Przykładowy plan lokalu


Zmiany lokatorskie
Szeroki wachlarz zmian lokatorskich, m.in. zmiany w układzie ścian działowych oraz instalacji, jak i bogaty katalog opcji dodatkowych pozwoli na dostosowanie domu do Państwa potrzeb.
Pomoc w podjęciu właściwych decyzji zapewni profesjonalne wsparcie zespołu Pure Development wraz z architektem.
układu ścian
punkty elektryczne
hydrauliki
elektryczne
przesuwne HST
Prospekt informacyjny
| Etap | Prospekt |
|---|---|
| Lokal nr 1, Lokal nr 2 |

Wysoka technologia wykonania
Wykorzystujemy sprawdzone jak również nowatorskie technologie a nasze inwestycje projektujemy w podwyższonym standardzie, wykorzystując produkty renomowanych marek

Bliskość natury oraz miasta
Wybierając naszą inwestycję nie musisz rezygnować z atutów życia w mieście.
Proponujemy lokalizację w bliskiej odległości od niezbędnej infrastruktury, szkół oraz sklepów. A szybki i komfortowy dojazd do Poznania zapewni niedaleki dostęp do dwupasmowej drogi krajowej nr 92.
Jak kupić dom?
Więcej o inwestycji
O inwestycji
Projekt Zalasewo to nowoczesne osiedle domów jednorodzinnych w zabudowie szeregowej, zlokalizowane w okolicy ulicy Serdecznej w Zalasewie. Miejscowość ta położona jest w gminie Swarzędz, na wschodzie Poznania – jednej z najprężniej rozwijających się gmin w Polsce.
Nasza inwestycja została zaprojektowana w oparciu o doświadczenia wyniesione z naszych realizacji na terenie Ożarowa Mazowieckiego oraz Wrocławia ze szczególnym uwzględnieniem funkcjonalności i kameralnego charakteru osiedla. Nasz projekt wyróżnia się prostą, ponadczasową i minimalistyczną architekturą oraz nieszablonowym designem.
To bardzo dobrze skomunikowane osiedle, odległość od centrum Poznania to jedyne 11,5 km.
W ramach pierwszego etapu inwestycji oferujemy 18 lokali. Na układ funkcjonalny każdego segmentu składają się dwie pełnowymiarowe
kondygnacje mieszkalne oraz gospodarczy strych, w standardowym układzie, na piętrze wytyczono cztery pokoje. Ustawne, funkcjonalne wnętrza oraz wysoki standard wykończenia. Akustyczne przegrody między lokalami dla zapewnienia mieszkańcom komfortu oraz prywatności.
Szeroki wachlarz zmian lokatorskich, w tym zmiany w układzie ścian działowych oraz instalacji, jak i bogaty katalog opcji dodatkowych pozwoli na dostosowanie domu do Państwa potrzeb.
W okolicy
Szkoła podstawowa
najbliższa placówka tylko 1,2 km od osiedla
Przedszkole
Zaledwie 550 m od osiedla
Żłobek
Jedynie 300 m od osiedla
Przystanek autobusowy
W odległości 270 m od osiedla znajduje się przystanek autobusowy, z którego kursują miejsce autobusy linii 484 oraz 494.
W okolicy liczne ścieżki rowerowe oraz tereny
Masz pytania?
Wypełnij formularz i wyślij do nas wiadomość lub zadzowń na numer


